Casa indipendente in vendita

Montecchia Di Crosara, Via Dal Cero
€ 289.000
15 locali 15 locali
743 Mq 743 Mq
5 bagni 5 bagni

Casa indipendente in vendita

Montecchia Di Crosara, Via Dal Cero

Descrizione annuncio

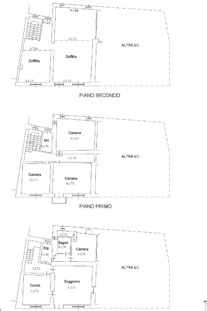
Nel comune di Montecchia di Crosara, in una splendida posizione soleggiata con vista panoramica sui colli, proponiamo in vendita un’ampia e affascinante proprietà composta da tre edifici e un terreno.

La proprietà comprende due abitazioni storiche del 1885, che conservano tutto il fascino autentico dell’epoca e offrono ingressi indipendenti, corte privata e ampi spazi personalizzabili.

La proprietà necessita di una ristrutturazione, ma si presta perfettamente sia per accogliere una grande famiglia, due nuclei distinti o per unire abitazione e attività professionale.

Accanto si trova un ulteriore edificio al grezzo di circa 270 mq, originariamente progettato per realizzare una pizzeria/ristorante, con ampie vetrate e vista aperta sul paesaggio circostante. Grazie alla sua versatilità strutturale, l’immobile può essere facilmente trasformato in una moderna abitazione privata o in una location esclusiva per attività ricettive e ristorative.

A completare la proprietà un lotto agricolo di 1.057 mq.

Contattaci per maggiori informazioni o per fissare una visita!

Devi richiedere un mutuo?
Grazie alla collaborazione con KIRON PARTNERS, potrai contare su operatori con esperienza pluriennale nel settore bancario e creditizio, pronti ad accompagnarti passo dopo passo nella richiesta del tuo mutuo.

Mostra tutto

Nelle vicinanze

Scuole Scuole
Scuole
670 m
Ristoranti Ristoranti
Birrificio 9.1
720 m
Re di Fiandra
770 m
La Terrazza
1,4 Km
Ristorante Tregnago
2,5 Km
Agriturismo Gasparin
2,7 Km
Mostra tutto

Caratteristiche

Rif.:
61135432
Piano:
Su più livelli di 3
Totale piani:
3
Box:
1
Posti auto:
2
Terrazzi:
1
Mostra tutto
Prezzo Prezzo
€ 289.000
Rata mutuo Rata mutuo
€ 1.362 / mese
Spese annue Spese annue
€ 0
Proponi il tuo prezzoProponi il tuo prezzo

Classe Energetica

G
G
G
G
G
G
G
G
G
EP globale non rinnovabile:
1.00 kW h/m² anno
EP globale rinnovabile:
1.00 kW h/m² anno
EP invernale del fabbricato:
EP estiva del fabbricato:
Anno di costruzione:
1885
Riscaldamento:
Autonomo
Tipo impianto:
A radiatori
Tipo alimentazione:
Metano

Ti interessa visionare l'immobile?

Fissa un appuntamento  Fissa un appuntamento

Richiedi informazioni

Clicca su Leggi per aprire l'informativa
* Questi campi sono obbligatori

Calcola il tuo mutuo

Semplice e senza impegno
Anticipo

( % )
Mutuo

( % )

pochi semplici passi

inserisci i tuoi dati
Questionario completato
Grazie per aver richiesto un appuntamento senza impegno con un nostro Consulente del Credito e Assicurativo.

Hai inserito correttamente tutti i dati necessari e a breve riceverai una e-mail con un link da convalidare per inviare i tuoi dati.
Affiliato
Soave Sviluppo Srl
Corso Vittorio Emanuele II, 34 37047 Soave (VR)

Il nostro staff


  • Paolo Morana Dal Bianco
    Affiliato

  • Christian Bragantini
    Affiliato
Corso Vittorio Emanuele II, 34 37047 Soave (VR)
Zona: Soave-Monteforte D'Alpone-Montecchia di Crosara-Roncà
Mostra su mappa
Orari: Lunedì - Venerdì 9.00-12.30 15.00-19.30 Sabato 9.00-12.30
Affiliato
Soave Sviluppo Srl
Corso Vittorio Emanuele II, 34 37047 Soave (VR)

2026 Tecnocasa Franchising S.p.A. - P. IVA 08365160152 - Via Monte Bianco 60/A 20089 Rozzano (MI). Ogni agenzia ha un proprio titolare ed è autonoma. Privacy policy | Policy utilizzo | Cookie policy