Casa semindipendente in vendita

Montecchia Di Crosara, Via Dal Cero - Dal Cero
€ 89.000
5 locali 5 locali
191 Mq 191 Mq
3 bagni 3 bagni

Casa semindipendente in vendita

Montecchia Di Crosara, Via Dal Cero - Dal Cero

Descrizione annuncio

Nel comune di Montecchia di Crosara, in una posizione soleggiata e panoramica, proponiamo in vendita una splendida abitazione storica risalente al 1885.

L’immobile conserva il fascino autentico dell’epoca, con dettagli originali e una struttura che si presta a molteplici personalizzazioni.

La proprietà è disposta su più livelli e dispone di ingressi indipendenti e una corte privata, offrendo ampi spazi che possono essere adattati alle esigenze di una grande famiglia, di due nuclei distinti o per chi desidera unire abitazione e attività professionale.

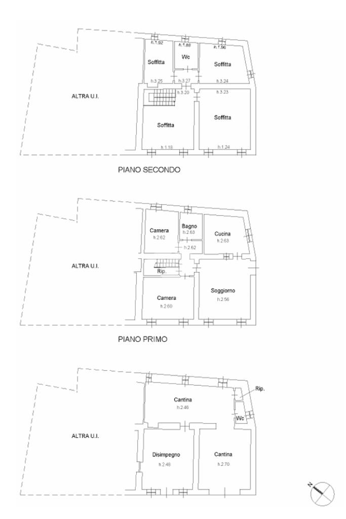
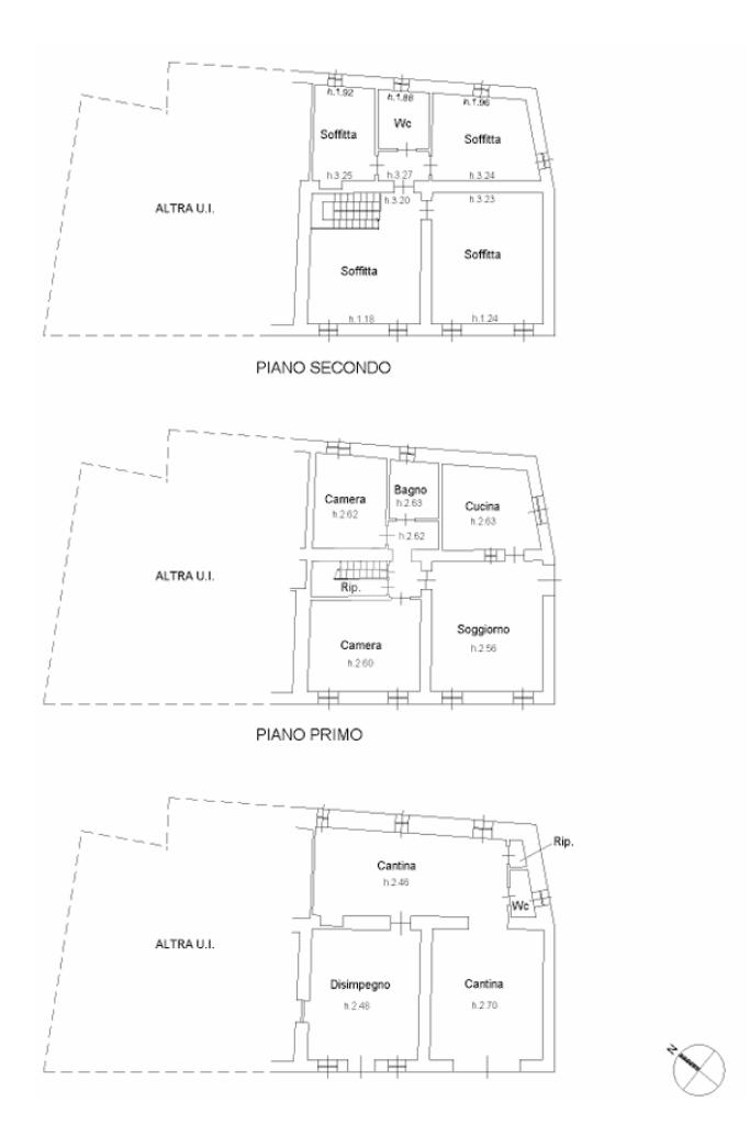
Al piano terra troviamo una comoda cantina, con la possibilità di realizzare un box auto, oltre a un servizio aggiuntivo. Il primo piano si compone di un ampio soggiorno con camino, una cucina separata, un bagno finestrato con vasca e due camere da letto. Il secondo piano, attualmente adibito a soffitta, offre un ulteriore bagno e un grande spazio da personalizzare, ideale per essere trasformato in una zona living, studio o camere aggiuntive.

Il riscaldamento è autonomo con radiatori in tutti gli ambienti, garantendo il massimo comfort. La proprietà necessita di una ristrutturazione, ma rappresenta un'opportunità unica per chi cerca un immobile da rinnovare secondo i propri gusti, in una zona tranquilla ma ben collegata.

Questa è l’occasione perfetta per chi desidera vivere in un contesto storico e panoramico, senza rinunciare alla comodità dei servizi.

Contattaci per maggiori informazioni e per organizzare una visita!

Devi richiedere un mutuo?
Grazie alla collaborazione con KIRON PARTNERS, potrai contare su operatori con esperienza pluriennale nel settore bancario e creditizio, pronti ad accompagnarti passo dopo passo nella richiesta del tuo mutuo.

Mostra tutto

Nelle vicinanze

Scuole Scuole
Scuole
690 m
Ristoranti Ristoranti
Birrificio 9.1
720 m
Re di Fiandra
750 m
La Terrazza
1,4 Km
Ristorante Tregnago
2,6 Km
Agriturismo Gasparin
2,6 Km
Mostra tutto

Caratteristiche

Rif.:
61170901
Piano:
Terra con giardino di 3
Totale piani:
3
Camere da letto:
2
Arredamento:
Parziale
Condizionamento:
Assente
Mostra tutto
Prezzo Prezzo
€ 89.000
Rata mutuo Rata mutuo
€ 413 / mese
Spese annue Spese annue
€ 0
Proponi il tuo prezzoProponi il tuo prezzo

Classe Energetica

Questo immobile è esente da classe energetica
Anno di costruzione:
1885
Riscaldamento:
Autonomo
Tipo impianto:
A radiatori
Tipo alimentazione:
Metano

Ti interessa visionare l'immobile?

Fissa un appuntamento  Fissa un appuntamento

Richiedi informazioni

Clicca su Leggi per aprire l'informativa
* Questi campi sono obbligatori

Calcola il tuo mutuo

Semplice e senza impegno
Anticipo

( % )
Mutuo

( % )

pochi semplici passi

inserisci i tuoi dati
Questionario completato
Grazie per aver richiesto un appuntamento senza impegno con un nostro Consulente del Credito e Assicurativo.

Hai inserito correttamente tutti i dati necessari e a breve riceverai una e-mail con un link da convalidare per inviare i tuoi dati.
Affiliato
Soave Sviluppo Srl
Corso Vittorio Emanuele II, 34 37047 Soave (VR)

Il nostro staff


  • Paolo Morana Dal Bianco
    Affiliato

  • Christian Bragantini
    Affiliato
Corso Vittorio Emanuele II, 34 37047 Soave (VR)
Zona: Soave-Monteforte D'Alpone-Montecchia di Crosara-Roncà
Mostra su mappa
Orari: Lunedì - Venerdì 9.00-12.30 15.00-19.30 Sabato 9.00-12.30
Affiliato
Soave Sviluppo Srl
Corso Vittorio Emanuele II, 34 37047 Soave (VR)

2026 Tecnocasa Franchising S.p.A. - P. IVA 08365160152 - Via Monte Bianco 60/A 20089 Rozzano (MI). Ogni agenzia ha un proprio titolare ed è autonoma. Privacy policy | Policy utilizzo | Cookie policy