Multilocale in vendita

Soave, Piazza al Combattente
€ 180.000
1 locale 1 locale
313 Mq 313 Mq

Multilocale in vendita

Soave, Piazza al Combattente

Descrizione annuncio

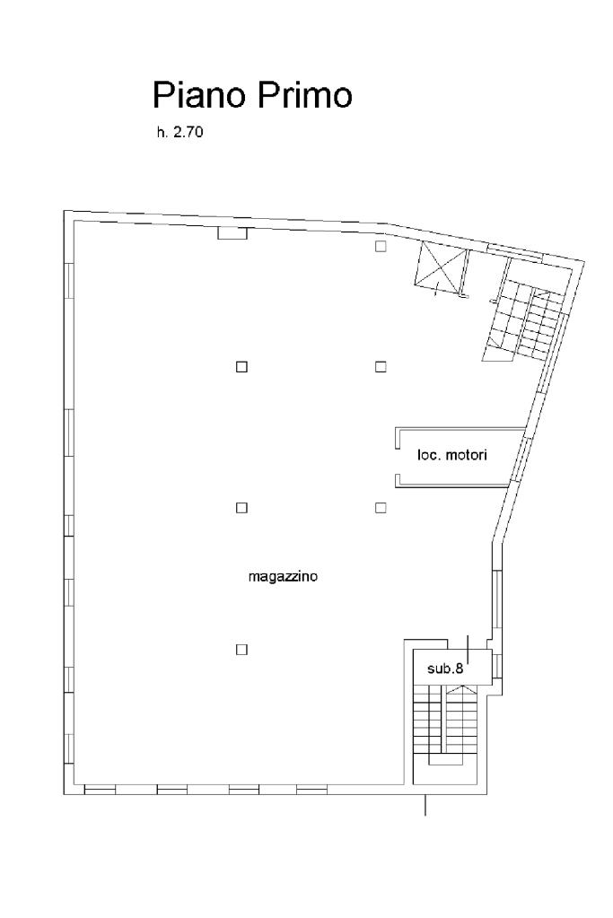
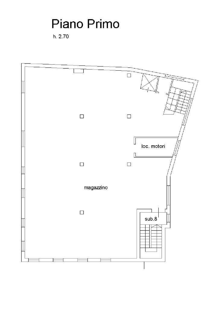
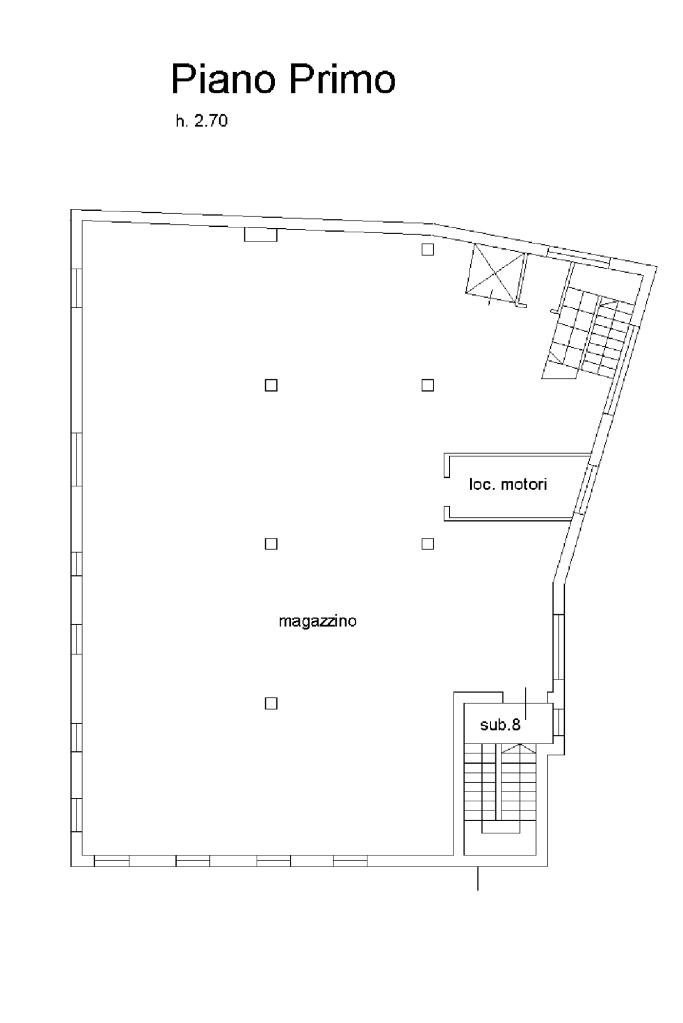
Nel cuore del centro storico di Soave proponiamo in vendita un ampio locale al piano primo, attualmente allo stato grezzo, ideale per chi desidera realizzare un progetto su misura in una delle zone più caratteristiche del paese.

L’immobile è attualmente accatastato come magazzino e rappresenta un’interessante opportunità sia come spazio da destinare a deposito, sia come progetto di valorizzazione immobiliare.

Grazie alla metratura e alla disposizione degli spazi, l’immobile si presta perfettamente a un intervento di ristrutturazione che, tramite cambio di destinazione d’uso, potrebbe consentire la realizzazione di più appartamenti, rendendolo una soluzione particolarmente interessante anche per investitori o imprese.

Uno dei punti di forza della proprietà è il tetto completamente rifatto nell’estate scorsa, un intervento che rappresenta un importante valore aggiunto per chi desidera proseguire con la ristrutturazione.

Gli ambienti, attualmente da completare, offrono grande libertà progettuale, permettendo di organizzare gli spazi secondo le proprie esigenze e di sfruttare al meglio le potenzialità dell’immobile.

La posizione centrale, nel suggestivo contesto del centro storico di Soave, consente di raggiungere comodamente a piedi tutti i principali servizi del paese.

Contattateci per ulteriori informazioni o per fissare una visita!

Devi richiedere un mutuo?
Grazie alla collaborazione con KIRON PARTNERS, potrai contare su operatori con esperienza pluriennale nel settore bancario e creditizio, pronti ad accompagnarti passo dopo passo nella richiesta del tuo mutuo.

Mostra tutto

Nelle vicinanze

Trasporto pubblico Trasporto pubblico
San Bonifacio
San Bonifacio
2,9 Km
Trasporto pubblico
210 m
San Bonifacio Via Minghetti
San Bonifacio Via Minghetti
2,8 Km
Ricariche auto elettriche Ricariche auto elettriche
Residenza Ai Capitelli
760 m
Farmacia Farmacia
Farmacia Centrale
0 m
Farmacia Frassoldati Vaccari
220 m
Parafarmacia
3,0 Km
Supermercati Supermercati
Lidl
1,7 Km
Negozi Negozi
Pan di Soave
120 m
Park per bus
250 m
Negozi
2,9 Km
Bar Bar
Casablanca Caffè
80 m
Il Drago
160 m
Ristoranti Ristoranti
L'Osteria di Via Roma
80 m
Bigoleria Della Rocca
310 m
Autogrill Soave
1,6 Km
Citta D'oro
1,8 Km
Gallo's & co
2,0 Km
Mostra tutto

Caratteristiche

Rif.:
61188223
Piano:
1 di 3 (Piano medio)
Arredamento:
Assente
Condizionamento:
Assente
Ascensore:
No
Riscaldamento:
Assente
Mostra tutto
Prezzo Prezzo
€ 180.000
Rata mutuo Rata mutuo
€ 854 / mese
Spese annue Spese annue
€ 0
Proponi il tuo prezzoProponi il tuo prezzo

Classe Energetica

G
G
G
G
G
G
G
G
G
EP globale non rinnovabile:
1.00 kW h/m² anno
EP globale rinnovabile:
1.00 kW h/m² anno
EP invernale del fabbricato:
EP estiva del fabbricato:
Anno di costruzione:
1970
Riscaldamento:
Assente

Ti interessa visionare l'immobile?

Fissa un appuntamento  Fissa un appuntamento

Richiedi informazioni

Clicca su Leggi per aprire l'informativa
* Questi campi sono obbligatori

Calcola il tuo mutuo

Semplice e senza impegno
Anticipo

( % )
Mutuo

( % )

pochi semplici passi

inserisci i tuoi dati
Questionario completato
Grazie per aver richiesto un appuntamento senza impegno con un nostro Consulente del Credito e Assicurativo.

Hai inserito correttamente tutti i dati necessari e a breve riceverai una e-mail con un link da convalidare per inviare i tuoi dati.
Affiliato
Soave Sviluppo Srl
Corso Vittorio Emanuele II, 34 37038 Soave (VR)

Il nostro staff


  • Paolo Morana Dal Bianco
    Affiliato

  • Christian Bragantini
    Affiliato
Corso Vittorio Emanuele II, 34 37038 Soave (VR)
Zona: Soave-Monteforte D'Alpone-Montecchia di Crosara-Roncà
Mostra su mappa
Orari: Lunedì - Venerdì 9.00-12.30 15.00-19.30 Sabato 9.00-12.30
Affiliato
Soave Sviluppo Srl
Corso Vittorio Emanuele II, 34 37038 Soave (VR)

2026 Tecnocasa Franchising S.p.A. - P. IVA 08365160152 - Via Monte Bianco 60/A 20089 Rozzano (MI). Ogni agenzia ha un proprio titolare ed è autonoma. Privacy policy | Policy utilizzo | Cookie policy